Nombre del proyecto: Supernova
Dirección del proyecto: Perú
Tamaño del proyecto: 1000
Principales elementos del proyecto: Zona de juegos blandos, tobogán grande, piscina de bolas, cama elástica normal, rocódromo, foso de espuma, circuito de obstáculos, circuito ninja, zona de construcción con bloques de EPP.
Estilo de diseño: Complejo deportivo
Cómo está construida 2kiddy?
Foto real del sitio
En este proyecto, nos encontramos con un almacén vacío. La visión del cliente era transformarlo en un paraíso integral. Dejaron claro que querían una zona de juegos infantiles para niños de 3 a 13 años y una zona de camas elásticas para adolescentes. Tras un diálogo exhaustivo y una cuidadosa negociación con el cliente, obtuvimos la versión final y confirmada del plano.
El diseño de las áreas de juego infantiles no solo tiene en cuenta el proyecto en sí, sino que también requiere diseñadores experimentados que consideren el recorrido de juego. Solo con un buen recorrido de juego el proyecto será completo e interesante.
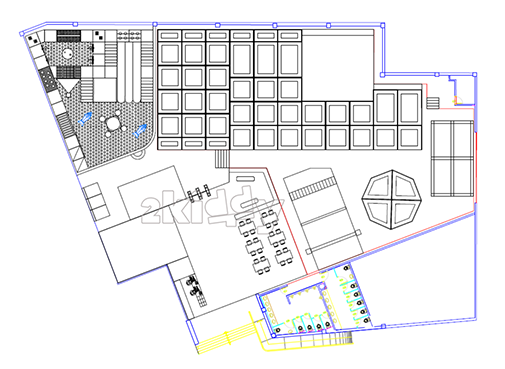
Plano del sitio, versión final
Plano del sitio, versión final
Calcetines antideslizantes personalizados
En esta colaboración, no solo proporcionamos la planificación del sitio para el cliente, sino que también le ayudamos a diseñar su propio logotipo y calcetines antideslizantes personalizados de acuerdo con su planificación y visión a largo plazo.
El diseño final confirmado
Teniendo en cuenta la forma particular del terreno, adaptamos el diseño para satisfacer las necesidades de niños de diferentes edades. Hemos diseñado una zona de juegos blandos y un área con estructuras de EPP (polipropileno expandido) para los más pequeños, y para los niños mayores, instalaciones como camas elásticas, piscinas de espuma, rocódromos y circuitos de obstáculos tipo ninja.
En cuanto a la combinación de colores, mantuvimos una comunicación exhaustiva con el cliente para garantizar que el color estuviera en armonía con su logotipo. El cliente quedó muy satisfecho con los resultados de nuestra presentación final y elogió nuestros servicios profesionales y nuestro diseño innovador.
Esta colaboración no solo hizo realidad la visión del cliente, sino que también sentó una base sólida para la futura imagen de su marca y el desarrollo de su cadena de negocios.
Producción
Una vez finalizada la producción, organizamos una instalación de prueba antes del envío. Para cada proyecto, realizamos una instalación de prueba después de la producción y enviamos fotos y videos al cliente para su verificación. Dado que cada conjunto de productos es personalizado y, en ocasiones, la plataforma y la estructura no son estándar, aunque el ingeniero lo revise minuciosamente antes de la producción, necesitamos asegurarnos al 100% de la seguridad y estabilidad para los niños.
Instalación de prueba
Plataforma de trampolín
A diferencia de otros proveedores, nuestra plataforma cuenta con una estructura de acero en lugar de madera, lo que la hace más estable, duradera y segura.
En cuanto a la estructura del trampolín, nuestra plataforma de acero, a diferencia de las plataformas de madera de otros proveedores, es más estable, duradera y segura. Si bien el costo es mayor, su vida útil es mucho más larga. Las plataformas de madera aglomerada, después de un uso prolongado, tienden a pudrirse, lo que conlleva riesgo de colapso. Para conocer otras diferencias, puede consultar aquí.
¡Mira lo que dicen nuestros clientes!
Las fotos de los comentarios de los clientes
Estas son las fotos del proyecto final; tanto a los niños y adolescentes como a los adultos les gustó muchísimo. Los clientes quedaron muy satisfechos y nos enviaron el video.
Hay algunas cosas que nos gustaría decir

Presentar un proyecto de parque infantil desde cero es una tarea emocionante y desafiante. Nos complace poder brindarle nuestro apoyo y asesoramiento.
Cada proyecto representa una gran inversión para el cliente, por lo que su éxito es crucial. Por ello, nos complace dedicar tiempo al inicio para comprender a fondo las necesidades, los objetivos y las expectativas de nuestros clientes y desarrollar soluciones adaptadas a su proyecto de parque infantil específico.

Dedicamos el tiempo y los recursos necesarios para garantizar que el proyecto alcance los resultados esperados por el cliente.

SOLICITAR UN PRESUPUESTO

PONTE EN CONTACTO AHORA
* Área del lugar de instalación
100-300 metros cuadrados
301-500 metros cuadrados
501-1000 metros cuadradoss
Más de 1000 metros cuadrados
* Rango de precios
$40,000 o menos
$40,000-$80,000
$80,000-$150,000
$150,000-$500,000
Captcha Code
×
Valoramos su privacidad
Utilizamos cookies para ofrecerle una mejor experiencia en línea, analizar y medir el uso del sitio web y colaborar en nuestras actividades de marketing.
Aceptar todo