Nombre del proyecto: Jungla alegre
Dirección del proyecto: India
Tamaño del proyecto: 240
Principales elementos del proyecto: Zona de juegos blanda, tobogán de olas grande, torre de escalada, tobogán en espiral, piscina de bolas, cama elástica normal, foso de espuma.
Estilo de diseño: Estilo selva
La zona cuenta con elementos de juego sencillos
Cómo está construida 2kiddy?
Este proyecto se ubica en un centro comercial y, al principio, contaba con varias atracciones sencillas. Sin embargo, al no haber personal que las gestionara, el espacio no se aprovechaba adecuadamente. Dado que el centro comercial ya disponía de videojuegos, cine y un laberinto para niños mayores, el cliente deseaba renovarlo con un parque infantil cubierto para niños de 3 a 15 años para ampliar la oferta de entretenimiento para diferentes edades.
El plan final confirmado
Este es el diseño final confirmado. Antes de llegar a este punto, lo revisamos muchas veces, ya que el espacio del cliente se amplió y también exploramos su estilo. Como era la primera vez que realizaban un proyecto de este tipo, no tenían una idea clara del tema ni de los elementos que querían, por lo que les presentamos varias opciones y les brindamos asesoramiento. Además, debido al presupuesto limitado, no incluimos artículos caros ni elementos decorativos, sino únicamente artículos funcionales.
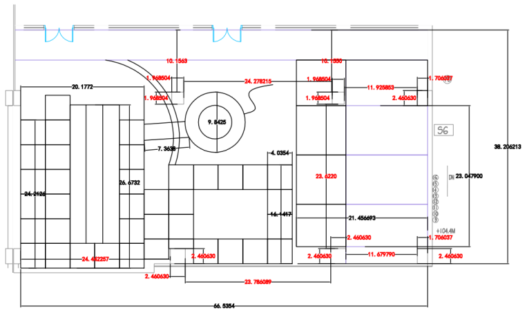
Se verifican las dimensiones dos veces antes de la producción
En cada proyecto realizaremos este paso. Marcaremos todas las dimensiones para que el cliente las revise antes de la producción.
Imágenes de producción
Estas son las fotos de producción que enviaremos al cliente después de realizar el pedido. De esta manera, podrán seguir el progreso de su pedido. Una vez finalizada la producción, realizamos una instalación de prueba antes del envío. Para cada proyecto, realizamos una instalación de prueba después de la producción y enviamos las fotos y videos al cliente para su verificación. Dado que cada conjunto de productos es personalizado y, en ocasiones, la plataforma y la estructura no son estándar, aunque el ingeniero lo revise minuciosamente antes de la producción, necesitamos asegurarnos al 100% de la seguridad y estabilidad para los niños.
A diferencia de otros proveedores, el grosor de nuestra plataforma es suficiente. Para los artículos blandos, cubrimos la espuma con una capa de esponja, lo que permite una recuperación más rápida y una mayor suavidad, prolongando su vida útil, aunque esto también incrementa el costo. Puede consultar más información aquí.
¡Mira lo que dicen nuestros clientes!
Las fotos de los comentarios de los clientes
Estas son las fotos compartidas por los clientes. Este proyecto fue instalado por nuestro equipo de instalación asociado en India. El parque infantil ha atraído a muchos niños y ha aumentado la afluencia de público al centro comercial. Y después de tres meses de la inauguración del primer proyecto, el cliente realizó un segundo pedido; sin duda, otra historia de éxito.
Hay algunas cosas que nos gustaría decir

Presentar un proyecto de parque infantil desde cero es una tarea emocionante y desafiante. Nos complace poder brindarle nuestro apoyo y asesoramiento.
Cada proyecto representa una gran inversión para el cliente, por lo que su éxito es crucial. Por ello, nos complace dedicar tiempo al inicio para comprender a fondo las necesidades, los objetivos y las expectativas de nuestros clientes y desarrollar soluciones adaptadas a su proyecto de parque infantil específico.
Dedicamos el tiempo y los recursos necesarios para garantizar que el proyecto alcance los resultados esperados por el cliente.

SOLICITAR UN PRESUPUESTO

PONTE EN CONTACTO AHORA
* Área del lugar de instalación
100-300 metros cuadrados
301-500 metros cuadrados
501-1000 metros cuadradoss
Más de 1000 metros cuadrados
* Rango de precios
$40,000 o menos
$40,000-$80,000
$80,000-$150,000
$150,000-$500,000
Captcha Code
×
Valoramos su privacidad
Utilizamos cookies para ofrecerle una mejor experiencia en línea, analizar y medir el uso del sitio web y colaborar en nuestras actividades de marketing.
Aceptar todo